1 Bagni 90 m2
Caratteristiche principali
Classe
G (112,74 [kWh/m³a])
Altre caratteristiche e accessori
Canoni Anticipati
Tre Mesi
Accesso Disabili
Nessuna Barriera
Accessori
Aria Condizionata, Bagno Handicap, Cancello Elettrico, Passaggio Automobilistico, Passaggio Pedonale
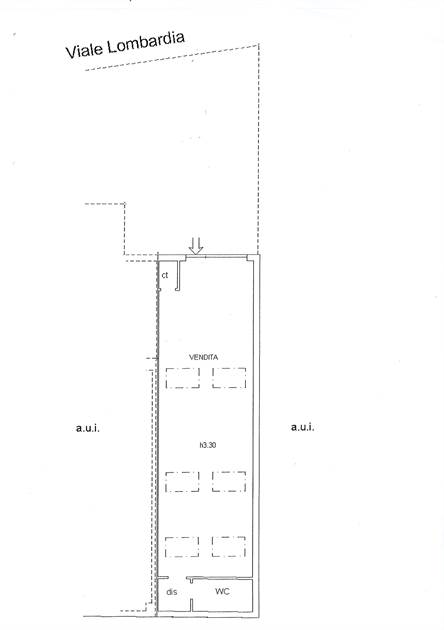
Busto Arsizio, viale Lombardia 2 (prossimità zona ex mercato) affittiamo particolare soluzione di ufficio al piano terra con area privata per parcheggio.
L'immobile dispone di accesso carraio con cancello motorizzato, in comune con altra attività oltre che accesso pedonale privato, entrambi da viale Lombardia, oltre a comoda area esterna privata per parcheggio di 3 veicoli.
L'ufficio è costituito da un open-space che misura metri 17 di profondità e metri 5 di larghezza.
Impianto di riscaldamento termoautonomo con caldaia murale e pannelli radianti, impianto di condizionamento a soffitto, impianto elettrico a norma completo di illuminazione ad incasso.
Lucernari motorizzati.
Serranda esterna per chiusura vetrina di ingresso motorizzata.
Possibilita' di installare insegne pubblicitarie luminose anche di grandi dimensioni.
Classe energetica G IPE KWh/mca 112,74.
Canone richiesto € 800 mensili (NON soggetto ad IVA),
NESSUNA SPESA CONDOMINIALE.
Rif. C538
viale Lombardia 2, Busto Arsizio (VA)